Skip To Content

15203 Cumulus Way

Caldwell, ID 83607
  • $N/A
  • STATUS: Sold
  • ON SITE: 49 Days
  • MLS #: 98963119
Sold - 11/13/2025
$N/A
SOLD - 11/13/2025
  • 5
    BEDS
  • 0.4
    ACRES
  • 5
    BATHS
  • 0
    1/2 BATHS
  • 3,848
    SQFT
  • $0
    $/SQFT
Neighborhood:
Type:
Single-Family Home
Built:
2025
County:

School Information

Elementary School:
Middle School:
High School:
Intermountain MLS logoCourtesy of Fathom Realty at 208-576-4717.

Description

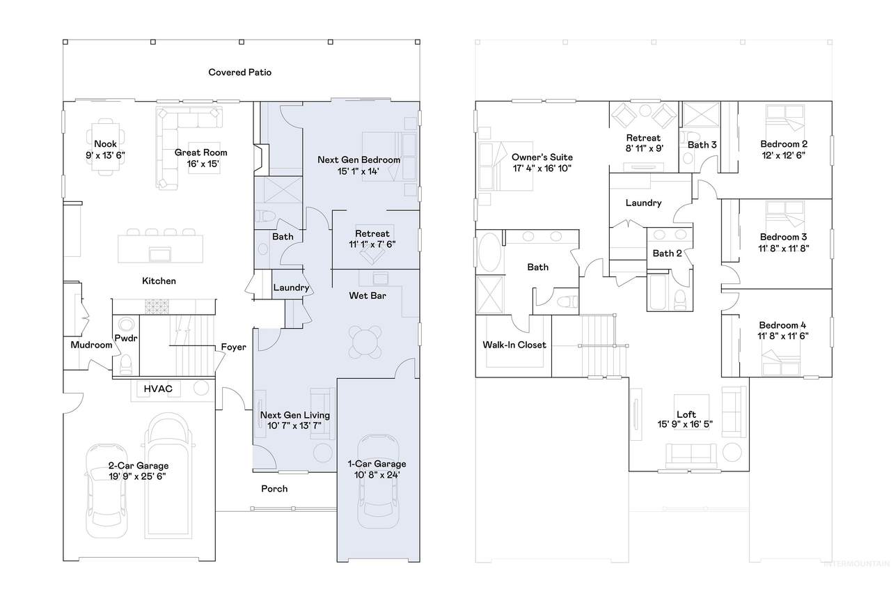
The Next Gen is luxury multi-generational living. The main level of both homes has 9' ceilings and 6'x8" sliding doors onto the full house width covered patio! Next Gen suite has a Kitchenette with a convection microwave and quartz countertops, its own entrance, laundry, and single car garage. The main part of the home welcomes you into a great room with a fireplace that has a mantel and quartz surround! The top-of-the-line gourmet kitchen has quartz countertops and full backsplash, designer cabinets in 5 colors, double ovens, gas cooktop, spacious walk-in pantry, refrigerator, and grand island. Each room is wired for your favorite chandelier or ceiling fan and the kitchen island is pre-wired for pendant lights. Other thoughtful features include washer and dryer, window blinds throughout the home, full landscaping, 6" baseboards, drop zone with bench! Cirrus Pointe features rolling topography for beautiful views, green spaces, just minutes to the freeway, shopping, and dining or outdoor fun at Lake Lowell!

Directions: I-84 to Karcher Road, S on Indiana

Monthly Payment Calculator



Intermountain MLS logo© 2025 Intermountain Multiple Listing Service, Inc. (IMLS). Real estate listings held by brokerage firms other than Idaho Life Real Estate are marked with the IMLS IDX logo and information about them includes the name of the listing brokerage. Information provided by IMLS is deemed reliable but not guaranteed. IDX information is provided exclusively for consumers' personal, non-commercial use and it may not be used for any purpose other than to identify prospective properties consumers may be interested in purchasing. IMLS does not assume any liability for missing or inaccurate data. Data last updated 2025-11-18T00:10:56.72.
www.idaholife.com/homes/168333489
Print Image

15203 Cumulus Way Caldwell, ID 83607

  • Price: $690,900
  • Status: Sold
  • On Site: 49 Days
  • MLS #: 98963119
5
Beds
5
Baths
0
½ Baths
0.4
Acres
3,848
SQFT
$0
$/SQFT
2025
Built
Neighborhood:
Cirrus Pointe
County:
Canyon
Area:
Caldwell Sw - 1280
Elementary School:
Lakevue
Middle School:
Vallivue Middle
High School:
Vallivue
School District:
Vallivue School District #139
Property Description
The Next Gen is luxury multi-generational living. The main level of both homes has 9' ceilings and 6'x8" sliding doors onto the full house width covered patio! Next Gen suite has a Kitchenette with a convection microwave and quartz countertops, its own entrance, laundry, and single car garage. The main part of the home welcomes you into a great room with a fireplace that has a mantel and quartz surround! The top-of-the-line gourmet kitchen has quartz countertops and full backsplash, designer cabinets in 5 colors, double ovens, gas cooktop, spacious walk-in pantry, refrigerator, and grand island. Each room is wired for your favorite chandelier or ceiling fan and the kitchen island is pre-wired for pendant lights. Other thoughtful features include washer and dryer, window blinds throughout the home, full landscaping, 6" baseboards, drop zone with bench! Cirrus Pointe features rolling topography for beautiful views, green spaces, just minutes to the freeway, shopping, and dining or outdoor fun at Lake Lowell!

Directions: I-84 to Karcher Road, S on Indiana
Exterior Features

Carport YN No Construction Materials FrameHardiPlank Type Covered Spaces 3 Fencing FullVinyl Foundation Details Crawl Space Levels Two Lot Features 10000 SF - .49 ACAuto Sprinkler SystemPressurized Irrigation Sprinkler System Other Structures Separate Living Quarters Parking Features Attached Parking Total 3 Patio And Porch Features Covered Patio/Deck Roof Architectural Style

Interior Features

Above Grade Finished Area 3848 Above Grade Finished Area Units Square Feet Appliances ENERGY STAR Qualified Water HeaterDishwasherDisposalDouble OvenMicrowave Attached Garage YN Yes Below Grade Finished Area 0 Below Grade Finished Area Units Square Feet Building Area Total 3848 Cooling Central Air Cooling YN Yes Fireplace Features OneGasInsert Fireplace YN Yes Fireplaces Total 1 Garage YN Yes Heating Forced Air Heating YN Yes Interior Features Bath-MasterDouble VanityWalk-In Closet(s)Breakfast BarPantryKitchen IslandQuartz Counters Main Level Bathrooms 1 Main Level Bedrooms 1 Room Bedroom2 Level Upper Room Bedroom3 Level Upper Room Bedroom4 Level Upper Room Bedroom5 Level Main Room Master Bedroom Level Upper

Property Features

Association Fee 104 Association Fee Frequency Quarterly Association YN Yes Builder Name Lennar Current Use Single Family Green Indoor Air Quality Low/No VOC Paint Land Lease YN No Listing Terms Consider All New Construction YN Yes Ownership Fee SimpleFractional Ownership: No Property Sub Type Single Family Residence Tax Annual Amount 0 Tax Legal Description Lot 35Block 12Cirrus Pointe SubCanyon County Tax Year 2024 Utilities Sewer ConnectedCable ConnectedBroadband Internet Water Source City Service

Intermountain MLS logoCourtesy of Fathom Realty: 208-576-4717.


Intermountain MLS logo© 2025 Intermountain Multiple Listing Service, Inc. (IMLS). Real estate listings held by brokerage firms other than Idaho Life Real Estate are marked with the IMLS IDX logo and information about them includes the name of the listing brokerage. Information provided by IMLS is deemed reliable but not guaranteed. IDX information is provided exclusively for consumers' personal, non-commercial use and it may not be used for any purpose other than to identify prospective properties consumers may be interested in purchasing. IMLS does not assume any liability for missing or inaccurate data. Data last updated 2025-11-18T00:10:56.72.
 
https://bt-photos.global.ssl.fastly.net/imls/1280_boomver_1_98963119-2.jpg https://bt-photos.global.ssl.fastly.net/imls/1280_boomver_1_98963119-2.jpg https://bt-photos.global.ssl.fastly.net/imls/1280_boomver_1_98963119-2.jpg
Logo
Idaho Life Real Estate
1861 S. Wells Ave. Suite 110
Meridian ID, 83642
Intermountain MLS logoCourtesy of Fathom Realty at 208-576-4717.